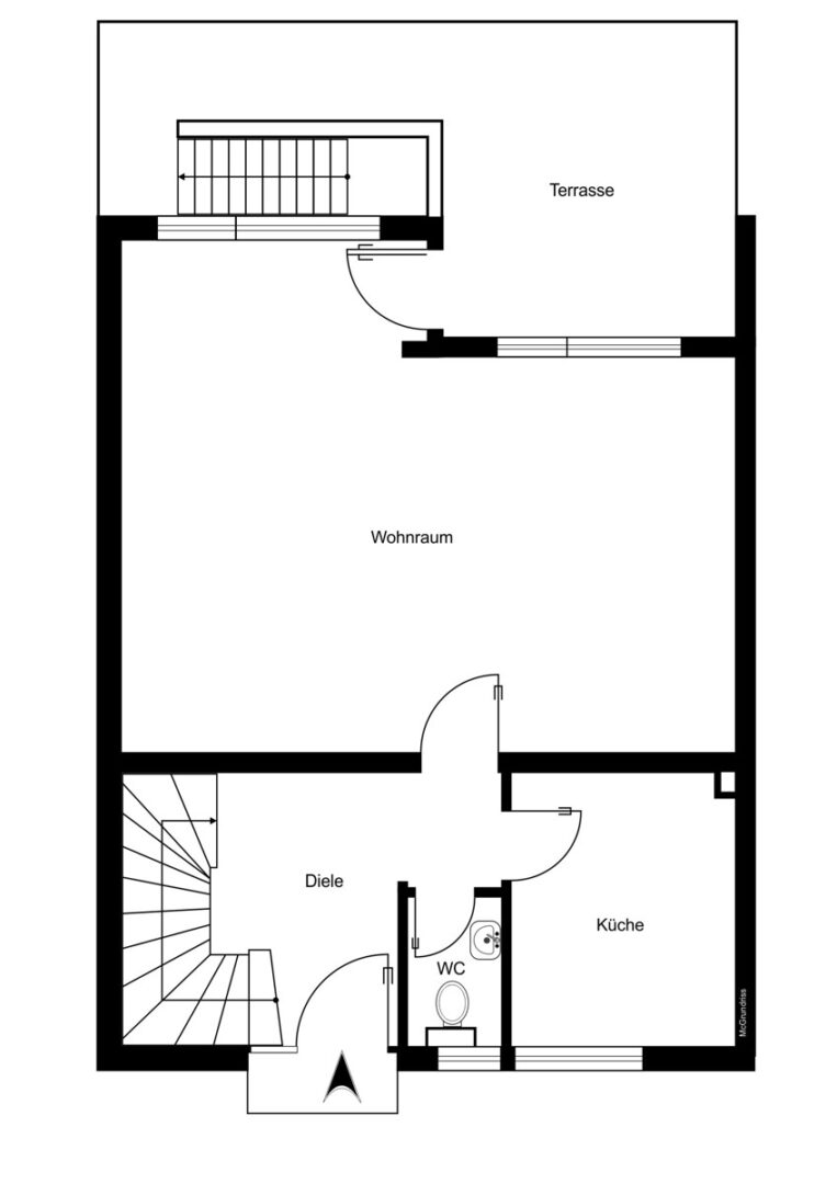
Dieses ansprechende, gepflegte Reihenmittelhaus bietet ein optimales Platzangebot für ein Paar oder eine Familie mit einem Kind. Im Erdgeschoss befinden sich die Diele mit Treppenhaus, das Gäste-WC, die Küche und das Wohn-Esszimmer mit schönem Gartenblick. Die Diele und das Treppenhaus sind mit einem hellen Marmorbelag und das Wohn-Esszimmer mit Parkett ausgelegt.
Das 1. Obergeschoss verfügt über ein Elternschlafzimmer mit Balkonzugang und ein größeres Kinderzimmer, welches auch durch den Einbau einer Zwischenwand in zwei Räume aufzuteilen wäre, da die zweite Türe bereits verbaut ist. Weiterhin befindet sich hier auch noch ein Abstellraum und ein Bad mit einer begehbaren Dusche und einer Glastrennwand, die erst in den letzten Jahren verbaut wurde. Die weitere Ausstattung des Bades entspricht dem Baujahr.
Im Untergeschoss befinden sich 3 Kellerräume. Die Waschküche mit Zugang zum Garten, ein Vorratsraum und der Heizungskeller. Durch den Einbau einer Gasbrennwerttherme im Jahre 2023, kann der geleerte Öltank entfernt werden und würde somit ein weiteres Platzangebot schaffen.
Die Kunststofffenster sind mit einer Doppelverglasung und teilweise Sicherheitsbeschlägen (Türen) und Rolläden ( im EG elektrisch) ausgestattet.
Die Terrasse mit dem Kellerzugang ist überdacht und verfügt zusätzlich noch über eine Markise. Der Garten ist liebevoll und pflegeleicht angelegt. Eine Garage im nebenliegenden Garagenhof rundet das Angebot noch ab.
Diese Immobilie ist ein tolles Alternative zu einer Eigentumswohnung!



