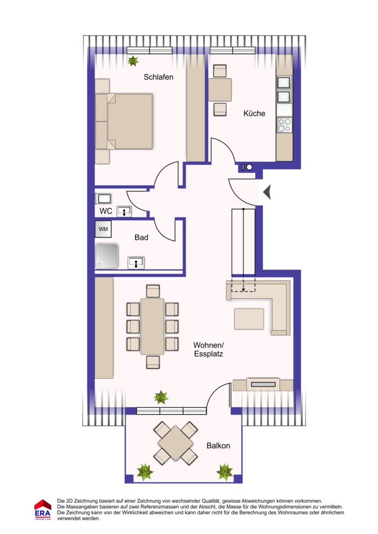
In zentraler Innenstadtlage von Gerlingen bieten wir Ihnen, in einem 6-Familienhaus, eine hochwertige, modernisierte 3,5 Zimmer Maisonette-Wohnung an. Diese komfortable Wohnung bietet eine Wohnfläche von über 98m² verteilt auf zwei Etagen. Der großzügige Balkon mit Glastür zum Öffnen, sorgt für viel Tageslicht und ein lichtdurchflutetes Wohnzimmer. Also ein hervorragender Ort für den gemütlichem Abend mit Familie und Freunden. Im Sommer perfekt zum Grillen oder zum gemütlichen Beisammensitzen geeignet.
Die Wohnung ist qualitativ hochwertig ausgestattet. Auf der unteren Ebene haben Sie ein großes Bad mit Waschmaschine und Trockner, dazu noch ein separates WC. Auf der oberen Etage ist ein weiteres Bad mit Dusche und WC. Die Bäder und die Küche wurden zuletzt komfortabel erneuert. Das große Wohn-Esszimmer ist der Lebensmittelpunkt. Die Küche ist zum Essbereich hin offen gehalten. Die neuwertige Einbauküche ist im Kaufpreis enthalten und zeichnet sich durch ihre Markengeräte und reichlich Stauraum aus. Von dort geht es offen in den Wohnbereich über. Das Glaselement zum Balkon lässt sich über die gesamte Balkonbreite öffnen. Mit der Überdachung ist der Balkon quasi eine Art Wintergarten. Auf dieser Etage ist auch ein Kinderzimmer verfügbar, was auch als Büro oder Gästezimmer verwendet werden könnte.
Die Aufteilung der oberen Etage überzeugt durch ein großes Schlafzimmer mit viel Platz für den Kleiderschrank. Eine Nische bietet zusätzlich Stauraum. Das Tageslichtbad mit Fußbodenheizung und Dusche/WC ist sehr geräumig und verfügt über eine hochwertige Ausstattung. Diese Ebene können Sie auch über einen separaten Eingang erreichen. Der ausgebaute und nachträglich gedämmte Dachstuhl bietet zusätzlich viel Stauraum.
Die Wohnung wird nach Absprache frei.
Fix zu dieser Wohnung wird ein TG-Stellplatz im Wert von 19.500 Euro mit verkauft.
Ein geräumiger, abschließbarer Keller gehört mit zur Wohnung. Dieser Stauraum bietet mehr als genug Platz um Ihren Hausrat sicher unterzubringen. Hier können Sie auch noch zusätzlich einen Kühlschrank aufstellen oder Gefriertruhe anschließen. Ein separater Fahrradraum gleich am Hauseingang ist ebenfalls verfügbar.
Das Hausgeld beträgt monatlich ca. 460 Euro. Darin sind umlagefähige und nicht umlagefähige Kosten bereits enthalten.
Der Energieausweis mit guten Werten wird zur Besichtigung vorgelegt.



